SIGN UP

FOR UPDATES
INVITATIONS & MORE

WELCOME BACK, !

Click here to update your information

UPDATE YOUR INFORMATION

WELCOME BACK, !

Click here to update your information

UPDATE YOUR INFORMATION

SIGN UP UPDATE YOUR INFORMATION UPDATE YOUR INFORMATION

Atria II by New Leaf

From $624,500

Estimate Monthly Payment
New Leaf Atria II courtyard Exterior
New Leaf Atria II home plan Exterior
New Leaf Atria II Interior living area
New Leaf Atria II Interior kitchen area

2,552 Sq Ft

3 4 Bed

2.5 3.5 Bath

2 - Car Garage

2 Stories

Single-Family

Main Level Primary Suite

Multi-Generational

Description:

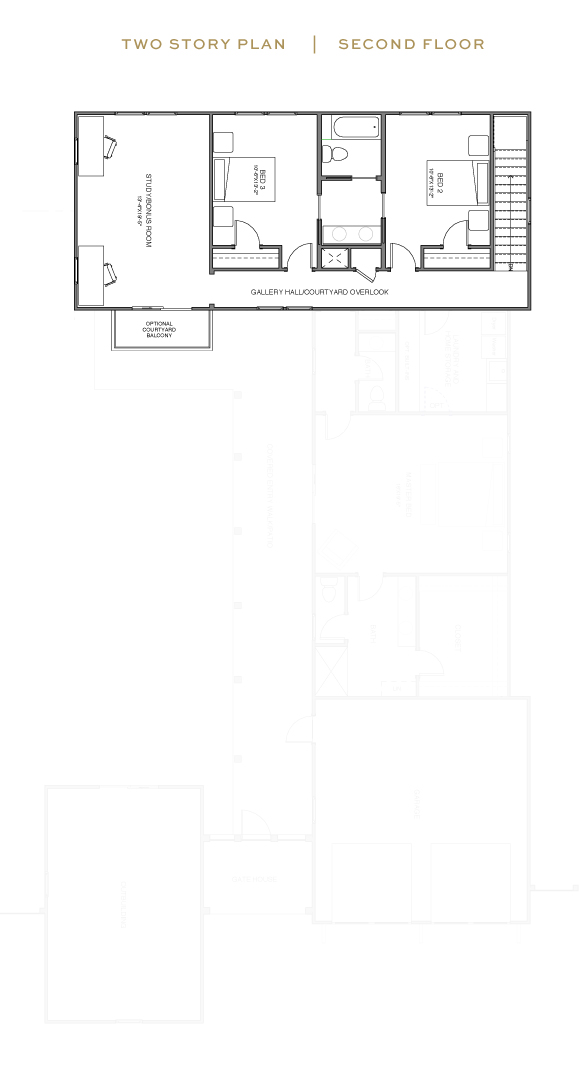
A two-story option of the Atria, this 2,552 square foot home boasts three bedrooms with the primary suite engaging the courtyard space, and has a second bedroom tucked quietly into the rear of the house for greater privacy. Expansive covered porches promote an easy flow for yourself and guests to embrace the Domus Collection’s unique courtyard living concept.  This home can also feature one of the unique outvilla options such as Cabana, Casita or Gazebo located in the courtyard.

More
Nexton Square
Shopping & dining in Summerville just got a whole lot better. Nexton Square encompasses over 20 boutiques, salons, services and restaurants offering just about any sort of cuisine you can imagine.
Parks and Trails
To us, parks are more than just pretty places. They are invitations to a healthier lifestyle. They form the connections that hold the whole place together. That’s why we’ve devoted almost half of the community to parks...
Education
The way we see it, education is mission-critical for any community. As one of our cornerstones, it is our goal to ensure students are prepared for the modern world through state-of-the-art programming and technology.
Come See Us
Planning a visit to Nexton? Start your tour at the Nexton Info Cottage. You’ll get an overview of the entire community and help narrowing down your options.
New Leaf Atria II courtyard Exterior
New Leaf Atria II home plan Exterior
New Leaf Atria II Interior living area
New Leaf Atria II Interior kitchen area

Floor Plan

Print Floor Plan
Atria_2Story-1st.jpg
Atria_2Story-2nd.jpg
Outbuilding-Options.jpg

Map Location

Mortgage Calculator

$
value should not be empty
$
%
%
%
$

Your Payment:

This calculator and its results are intended for illustrative purposes only and are not an offer or guarantee of financing. Rates and payment terms, if offered by a lender, will vary upon an applicant’s credit-worthiness and are subject to change. Additional costs, such as property taxes, insurance and HOA fees, may apply.

See more mortgage rates on Zillow.